Bilocale in vendita

Brembio, Via Saint Christo en Jarez
€ 55.000
Prezzo aggiornato
2 locali 2 locali
45 Mq 45 Mq
1 bagno 1 bagno

Bilocale in vendita

Brembio, Via Saint Christo en Jarez

Descrizione annuncio

In una delle zone residenziali di Brembio edificate negli ultimi decenni, all'interno di un piccolo contesto con spese condominiali contenute, proponiamo in vendita questo originale appartamento ideale per chi è alla ricerca di una soluzione pronta da abitare, con spazi funzionali e versatili.

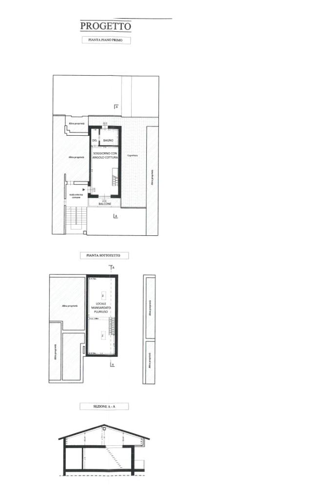
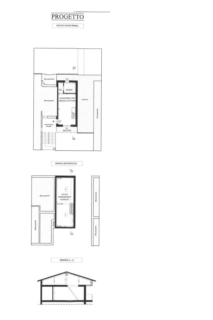
L’abitazione si apre su un accogliente soggiorno con cucina a vista, reso molto luminoso dall’ampia vetrata che consente anche l’accesso alla balconata. Allo stesso piano sono presenti il bagno finestrato con doccia ed un antibagno dotato di attacco lavatrice attrezzabile anche come comodo ripostiglio. Tramite la scala interna si raggiunge il secondo livello, al piano sottotetto, caratterizzato da generose dimensioni e comodamente vivibile, che rappresenta un ambiente extra, sfruttabile in base alle proprie esigenze.

La costruzione è recente e lo studio ha valorizzato ogni ambiente, rendendo l’appartamento accogliente, moderno e pronto per essere vissuto senza necessità di ulteriori interventi, con quel tocco di calore conferito dalle travi in legno a vista nonché dalla scala interna realizzata nello stesso materiale.

Una soluzione ideale sia per un acquisto come prima casa sia come investimento da mettere a reddito, in una zona comoda per i servizi che questo popoloso Comune offre, ma allo stesso tempo tranquilla e riservata.

La palazzina è stata realizzata già tenendo conto delle misure di contenimento energetico e quindi consente di ridurre anche i consumi energetici.

E Brembio, collegato dai mezzi pubblici, sia pullman che treno, consente inoltre di muoversi senza dover necessariamente usare l’auto.

Quindi se stai pensando di renderti indipendente, se sogni una casa su misura, poco impegnativa ma accogliente, se affronti spese condominiali eccessive e non sopporti più i grandi condomini, contattaci ora per non perdere questa opportunità!

Il Gruppo Tecnocasa mette a disposizione del cliente la professionalità delle sue agenzie tramite un servizio competente ed efficace perché vendere e comprare casa è un progetto molto importante che va sostenuto in ogni singola fase affinché possa essere piacevole e sereno. Soddisfare l’esigenza del cliente e rispettare le sue aspettative è il nostro obbiettivo. Ed è per questo che offriamo anche una valutazione gratuita in caso di vendita del proprio immobile nonchè una consulenza non impegnativa per avere informazioni in merito all'eventuale richiesta di mutuo mediante la Società di intermediazione creditizia del Gruppo Tecnocasa che saprà consigliarti il prodotto migliore.

Mostra tutto

Nelle vicinanze

Trasporto pubblico Trasporto pubblico
stazione di Secugnago
stazione di Secugnago
1,9 Km
Trasporto pubblico
530 m
Scuole Scuole
Scuole
2,8 Km
Farmacia Farmacia
Farmacia
440 m
Supermercati Supermercati
Supermercati
300 m
Negozi Negozi
Pane Pasta
460 m
Negozi
560 m
Mostra tutto

Caratteristiche

Rif.:
61085326
Piano:
1 di 2 (ultimo Piano)
Balconi:
1
Camere da letto:
1
Arredamento:
Assente
Condizionamento:
Assente
Mostra tutto
Prezzo Prezzo
€ 55.000
Rata mutuo Rata mutuo
€ 259 / mese
Spese annue Spese annue
€ 350
Proponi il tuo prezzoProponi il tuo prezzo

Classe Energetica

E
E
E
E
E
E
E
E
E
EP globale non rinnovabile:
159.68 kW h/m² anno
EP globale rinnovabile:
0.09 kW h/m² anno
EP invernale del fabbricato:
EP estiva del fabbricato:
Anno di costruzione:
2006
Riscaldamento:
Autonomo
Tipo impianto:
A radiatori
Tipo alimentazione:
Metano

Prezzo ridotto di €1 (4%%)

Ti interessa visionare l'immobile?

Fissa un appuntamento  Fissa un appuntamento

Richiedi informazioni

Clicca su Leggi per aprire l'informativa
* Questi campi sono obbligatori

Calcola il tuo mutuo

Semplice e senza impegno
Anticipo

( % )
Mutuo

( % )

pochi semplici passi

inserisci i tuoi dati
Questionario completato
Grazie per aver richiesto un appuntamento senza impegno con un nostro Consulente del Credito e Assicurativo.

Hai inserito correttamente tutti i dati necessari e a breve riceverai una e-mail con un link da convalidare per inviare i tuoi dati.
Affiliato
Studio Lodi Snc
Corso Mazzini, 88 26900 Lodi (LO)

Il nostro staff


  • Anna Giambelli
    Responsabile

  • Salvatore Soffientini
    Affiliato

  • Linda Soffientini
    Collaboratrice
Corso Mazzini, 88 26900 Lodi (LO)
Zona: Lodi
Mostra su mappa
Orari: da lunedì a venerdì 9.00-12.30 e 14.30-19.30 sabato chiusura 12.30
Affiliato
Studio Lodi Snc
Corso Mazzini, 88 26900 Lodi (LO)

2026 Tecnocasa Franchising S.p.A. - P. IVA 08365160152 - Via Monte Bianco 60/A 20089 Rozzano (MI). Ogni agenzia ha un proprio titolare ed è autonoma. Privacy policy | Policy utilizzo | Cookie policy