Trilocale in vendita

Lodi, Via Monsignor Giuseppe Beccaria - San Bernardo
€ 210.000
3 locali 3 locali
95 Mq 95 Mq
2 bagni 2 bagni

Trilocale in vendita

Lodi, Via Monsignor Giuseppe Beccaria - San Bernardo

Descrizione annuncio

Se sei sei alla ricerca di un appartamento pronto da abitare in uno dei quartieri più richiesti di Lodi, questa è la casa che fa per te! All'interno di una palazzina costruita nel 2005, posto al primo piano, dotato di doppia esposizione ottimale sud-est, che rende l’intero immobile molto luminoso.

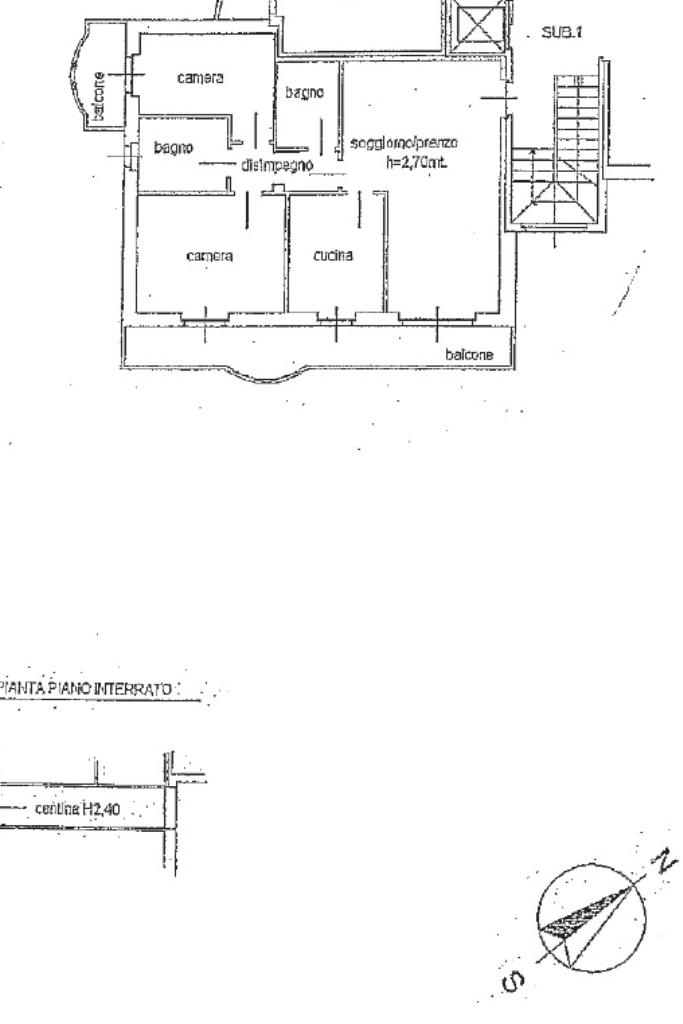
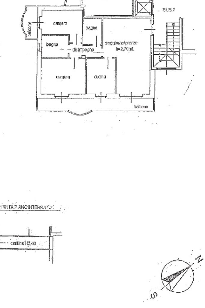
Entrando nell'appartamento siamo accolti da un comodo salone con zona pranzo e zona living con affaccio sulla cucina abitabile ed uscita sul primo balcone, proseguendo poi nel disimpegno notte possiamo raggiungere i due bagni, uno con finestra e vasca e l’altro cieco con doccia, e le due camere da letto, di cui una matrimoniale ed una cameretta, entrambe con uscita sul primo e secondo balcone. Per concludere la casa è dotata inoltre di box e cantina, raggiungibili anche tramite ascensore.

L'appartamento, essendo di recente costruzione, garantisce un buon confort termico grazie alla presenza di serramenti con doppio vetro ed aria condizionata ed è inoltre rifinito con ceramica in tutte le stanze.

La posizione è l'ideale sia per chi vuole essere comodo per uscire da Lodi, potendo raggiungere facilmente la tangenziale sia per chi desidera vivere in un quartiere dotato di tutte le comodità, San Bernardo, con scuole, farmacie, supermercati, edicole, ecc.

Cosa aspetti allora? Chiamaci subito per fissare un appuntamento! Ti proporremo, se necessario, anche una valutazione gratuita per la vendita del tuo immobile nonché una consulenza non impegnativa per avere informazioni in merito all'eventuale richiesta di mutuo mediante la Società di intermediazione creditizia del Gruppo Tecnocasa che saprà consigliarti il prodotto migliore.

Ogni agenzia ha un proprio titolare ed è autonoma - Le presenti informazioni non costituiscono elemento contrattuale.

Mostra tutto

Nelle vicinanze

Trasporto pubblico Trasporto pubblico
stazione di Lodi
stazione di Lodi
2,3 Km
Viale Piacenza 72 (villette)
Viale Piacenza 72 (villette)
200 m
Viale Piacenza 75 (villette)
Viale Piacenza 75 (villette)
250 m
Ricariche auto elettriche Ricariche auto elettriche
Negozio Enel di LODI | EnelX
1,2 Km
COOP Lodi
2,8 Km
Scuole Scuole
IPS L. Einaudi
370 m
Scuole
420 m
Scuola elementare Giovanni Pascoli
900 m
Liceo scientifico Giovanni Gandini
1,8 Km
ITIS Alessandro Volta
1,9 Km
Farmacia Farmacia
San Bernardo
780 m
Corbellini
850 m
Gastaldi
2,2 Km
Brusoni Francesco
2,3 Km
Comunale N. 4
2,3 Km
Ospedali Ospedali
Ospedale Maggiore
2,1 Km
Ospedale Vecchio
2,2 Km
Supermercati Supermercati
Carrefour Express
440 m
D più
490 m
Carrefour
1,2 Km
Eurospin
1,8 Km
MD
1,9 Km
Negozi Negozi
Negozi
610 m
Nuova Tendenza
1,5 Km
Briciole... e Delizie
1,7 Km
Bakery & Cupcakery
1,9 Km
Maffoni
2,0 Km
Bar Bar
New Bar
1,5 Km
Officine Adda
1,9 Km
Yoamo
2,3 Km
ART café
2,9 Km
Ristoranti Ristoranti
Megu
640 m
Pane e Farina
770 m
La Coldana
870 m
Dal Baffo
1,3 Km
La Barbina
1,3 Km
Mostra tutto

Caratteristiche

Rif.:
61176570
Piano:
1 di 2 con ascensore (Piano basso)
Box:
1
Balconi:
2
Camere da letto:
2
Arredamento:
Completo
Mostra tutto
Prezzo Prezzo
€ 210.000
Rata mutuo Rata mutuo
€ 990 / mese
Spese annue Spese annue
€ 1.400
Proponi il tuo prezzoProponi il tuo prezzo

Classe Energetica

E
E
E
E
E
E
E
E
E
EP globale non rinnovabile:
194.55 kW h/m² anno
EP globale rinnovabile:
3.04 kW h/m² anno
EP invernale del fabbricato:
EP estiva del fabbricato:
Anno di costruzione:
2005
Riscaldamento:
Autonomo
Tipo impianto:
A radiatori
Tipo alimentazione:
Metano

Ti interessa visionare l'immobile?

Fissa un appuntamento  Fissa un appuntamento

Richiedi informazioni

Clicca su Leggi per aprire l'informativa
* Questi campi sono obbligatori

Calcola il tuo mutuo

Semplice e senza impegno
Anticipo

( % )
Mutuo

( % )

pochi semplici passi

inserisci i tuoi dati
Questionario completato
Grazie per aver richiesto un appuntamento senza impegno con un nostro Consulente del Credito e Assicurativo.

Hai inserito correttamente tutti i dati necessari e a breve riceverai una e-mail con un link da convalidare per inviare i tuoi dati.
Affiliato
Studio Lodi Snc
Corso Mazzini, 88 26900 Lodi (LO)

Il nostro staff


  • Anna Giambelli
    Responsabile

  • Salvatore Soffientini
    Affiliato

  • Linda Soffientini
    Collaboratrice
Corso Mazzini, 88 26900 Lodi (LO)
Zona: Lodi
Mostra su mappa
Orari: da lunedì a venerdì 9.00-12.30 e 14.30-19.30 sabato chiusura 12.30
Affiliato
Studio Lodi Snc
Corso Mazzini, 88 26900 Lodi (LO)

2026 Tecnocasa Franchising S.p.A. - P. IVA 08365160152 - Via Monte Bianco 60/A 20089 Rozzano (MI). Ogni agenzia ha un proprio titolare ed è autonoma. Privacy policy | Policy utilizzo | Cookie policy